Hỗ trợ toàn quốc
Hỗ trợ toàn quốc
Hỗ trợ toàn quốc
Hỗ trợ toàn quốc
Mới đây, thời báo Insider của Mỹ đã đăng tải một bài viết về kiến trúc 'nhà ống' ở Hà Nội. Theo tác giả Amanda Goh, đường phố ở đây hấp dẫn du khách bởi một kiểu nhà đặc biệt, thường được người dân địa phương gọi là 'nhà ống'.
Những ngôi nhà ống đặc trưng trên đường phố Thủ đô của Việt Nam được sơn đủ loại màu sắc, và chúng có thể chỉ rộng chưa tới 2 mét.
Loạt nhà ống ở khu vực phố cổ Hà NộiTheo ông Đinh Quốc Phương, giám đốc Chương trình Kiến trúc Nội thất tại Đại học Công nghệ Swinburne, nhà ống là một trong những loại hình kiến trúc phổ biến nhất ở Việt Nam hiện nay.
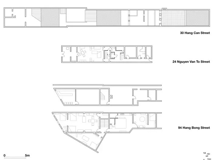
"Những ngôi nhà ống cũ được xây trước năm 1954, thường có hai tầng, kéo dài về sau với mặt tiền hẹp từ 2-5 mét. Vẫn trên nền đất cũ đó, nhà ống hiện nay được xây cao hơn, thậm chí lên đến 12 tầng", ông Phương cho biết.
Các cửa hàng hai tầng cũ dọc Hàng Đào, Khu Phố Cổ Hà Nội (1926)Theo một số ghi chép lịch sử, loại hình "nhà ống" được bắt nguồn từ những khu phố cổ Hà Nội. Khu vực này là đầu mối giao thương, buôn bán tấp nập. Mỗi con phố được đặt tên theo các mặt hàng được bán phổ biến ở đó như phố Hàng Bạc (buôn bán trang sức, vàng bạc) hay phố Hàng Gai (bán tơ lụa).
Không giống những nơi khác, ngoài việc để ở, "nhà ống" ở khu vực phố cổ còn là nơi buôn bán, tiến hành các giao dịch thương mại và có ý nghĩa vô cùng quan trọng với các hộ dân.
Nhà ống vừa là nơi ở vừa là nơi buôn bán của nhiều hộ gia đình"Với thiết kế nhiều tầng, nhà ống thường là nơi ở của nhiều thế hệ trong một gia đình", Mai Hùng Trung , kiến trúc sư khởi xướng Hanoi Ad Hoc, một nghiên cứu về cảnh quan đô thị Hà Nội, nói với Insider.
Theo ông Trung, cho tới tận bây giờ vẫn có thể tìm thấy những ngôi nhà là nơi ở của 5 hay 6 gia đình khác nhau ở khu phố cổ Hà Nội.
Bù đắp lại mặt tiền chật hẹp thì những ngôi nhà ống thường rất dài và sâuDù có mặt tiền hẹp nhưng nhà ống thường rất sâu. Có những ngôi nhà có thể sâu tới 100 mét. Nói về nguồn gốc thiết kế của loại hình nhà này, ông Trung cho biết có rất nhiều giả thuyết được đưa ra.
Thứ nhất, phong cách kiến trúc này có thể được hình thành do giá đất đắt đỏ. Khi mật độ dân số ngày càng đông, chính phủ buộc phải tiến hành thu thuế mặt tiền trên các con phố lớn, khiến người dân cố gắng giảm kích thước mặt tiền. Nhưng khi số lượng thành viên trong gia đình tăng, họ cần không gian và buộc phải xây từ trong ra ngoài.
Ông Trung cho biết: “Ở khu vực nội thành, đất quý như vàng. Nhà mặt phố từng là một trong những thước đo đánh giá sự giàu có của người dân".
Phần sân trong của những ngôi nhà ống cũNhững ngôi nhà ống cũ thường có một sân trong để đón ánh sáng và có chức năng như một "giếng trời" thông gió tự nhiên. Đây còn là nơi sinh hoạt chung, chỗ các thành viên trong gia đình tụ họp, quây quần.
Những ngôi nhà ống được thiết kế theo phong cách kiến trúc PhápGần đây, nhiều ngôi nhà ông còn được thiết kế theo phong cách "tân cổ điển" như những công trình có từ thời thuộc địa Pháp.
Bên cạnh xe máy, nhà ống được coi là đặc trưng của đường phố Việt NamNhưng bất kể nguồn gốc như thế nào, tác giả Amanda Goh khẳng định bên cạnh xe máy, "nhà ống" là một trong những nét đặc trưng của đường phố Việt Nam, góp phần định hình nên cảnh quan đô thị của đất nước.
(Nguồn: Đỗ An (Theo Insider), Vietnam net, Chủ nhật, 03/04/2022, 06:05 (GMT+7))

